Fünf Flügel für den Scheich
Nationalmuseum in Abu Dhabi von Foster + Partners
Seit knapp zwanzig Jahren wächst in Abu Dhabi auf der Insel Saadiyat ein umfangreicher Kulturbezirk, mit dem die Vereinigten Arabischen Emirate Weltgewandtheit, Kultiviertheit und Innovationskraft demonstrieren möchten. Unter der Regie der Tourismus- und Kulturbehörde entstanden – neben knapp 30 Hotels und Resorts – bisher unter anderem eine Dependance des Louvre und Ableger weltberühmter Universitäten sowie ein interreligiöses Gebetshaus. Auch ein Ableger des Guggenheim ist im Bau.
Das Anfang Dezember eröffnete Zayed Nationalmuseum erweitert die Reihe der von internationalen Größen der Architektur geplanten, aufsehenerregenden Kulturbauten am Wüstenrand. Das Gebäude mit fünf weißen, in den Himmel gereckten Flügeln entstand nach Plänen von Foster + Partners (London u.a.) und ist dem Gründervater der Vereinigten Arabischen Emirate gewidmet: Scheich Zayed bin Sultan Al Nahyan.
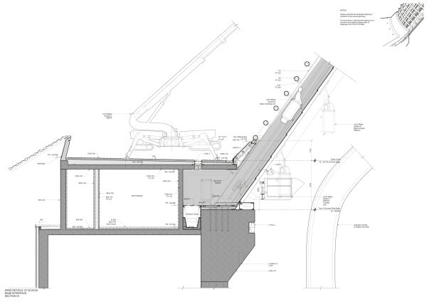
Er stand der Föderation von sieben Scheichtümern seit ihrer Gründung 1971 bis zu seinem Tod 2004 als Präsident vor. Dank seiner Leidenschaft für die Falknerei gerierte der Raubvogel zum Wappentier der VAE und symbolisiert als solcher den historischen, ölinduzierten Aufschwung der Golfregion. Dies und die Bestrebungen des Emirs, die Wüste zu begrünen, inspirierten Foster + Partner zu dem Entwurf, mit dem sie den Wettbewerb 2017 gewannen: Die fünf aerodynamisch geformten Flügel sind integraler Bestandteil des Klimasystems, fungieren als thermische Kamine und leiten kühle Luft durch die öffentlichen Bereiche.
Auch zur Belichtung des dreigeschossigen Museums dienen die bis 123 Meter hohen verglasten Flügel, die individuell einstellbar sind. Denn Atrium und Ausstellungsräume liegen zum Schutz vor der Hitze hinter und unter einer künstlichen Felsenlandschaft, die mittels facettierter, sandweißer Paneele die Topografie der VAE nachformt.
Überraschend weich und abgerundet empfangen die sechs Galerien der Dauerausstellung im Zentrum des 56.687 Quadratmeter Bruttogrundfläche fassenden Gebäudes ihr Publikum. Die kapselförmigen Räume sind über Knotenpunkte untereinander verbunden, die Durchwegungsroute ist frei wählbar. Eine skulpturale Wendeltreppe erschließt die oberen Geschosse. Im Erdgeschoss befinden sich ein Raum für Wechselausstellungen, ein Restaurant und ein Café.
Maximalen Luxus beweist der sich über 600 Meter Länge erstreckende Garten, der unter Mitarbeit von Atelier Dreiseitl (Überlingen) und WATG (London) inmitten des Wüstensands entstanden ist. Zwischen der artenreichen Begrünung finden sich bronzene Tierskulpturen, darunter auch einige Gazellen (Dhabi), die dem reichsten der Arabischen Emirate der Legende nach zu seinem Namen verhalfen. (kms)
Fotos: Nigel Young / Foster +Partners
- Architektur:
- Foster + Partners
- Bauherrschaft:
- Department of Culture and Tourism Abu Dhabi, UAE
- Bauingenieure:
- Akt II, WSP
- Generalunternehmer:
- Arabtec, Six Construct-Trojan JV
- Landschaftsarchitektur:
- WATG, Atelier Dreiseitl
- Energietechnik:
- Transsolar
- Fläche:
- 56.687 m² Brutogrundfläche
Aber schicke gemacht ist es dennoch, oder?