Hochhäuser in Paris von Ateliers Jean Nouvel
Bild 18/20
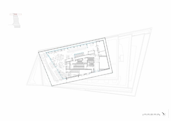
Grundriss Dachgeschoss mit Sky Bar, Duo-2
Bild: Ateliers Jean Nouvel