Bild 18/18
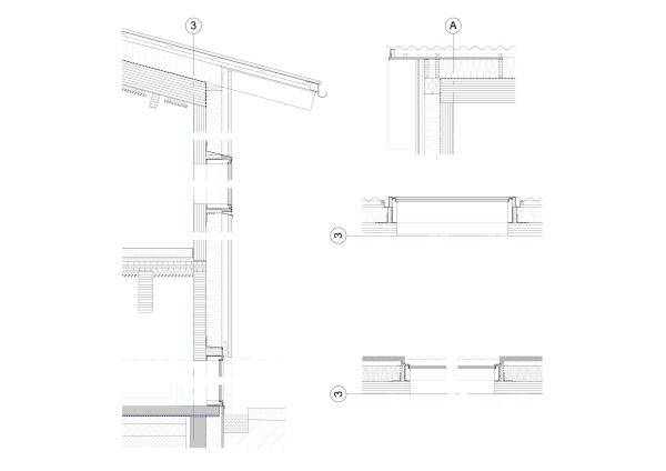
Detailschnitte: Fassade (links); Traufe vertikal, Fenster horizontal, Fenster horizontal (rechts, von oben nach unten)
Bild:
Transborder Studio
Bild 18/18
Detailschnitte: Fassade (links); Traufe vertikal, Fenster horizontal, Fenster horizontal (rechts, von oben nach unten)
Bild: