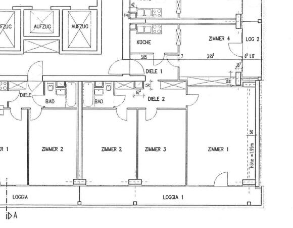
Ursprünglicher Grundriss (nach Westen ausgerichtet)

Bild 16/24

Ursprünglicher Grundriss (nach Westen ausgerichtet)

Bild: Christopher Sitzler