Wohnungsumbau von Christopher Sitzler in Berlin
Bild 15/24
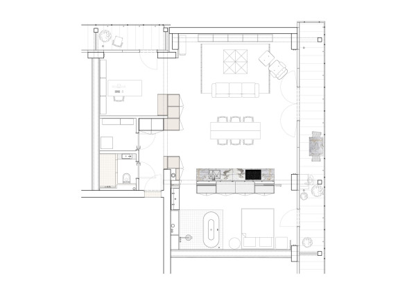
Grundriss nach Umbau (genordet)
Bild: Christopher Sitzler