Die Meldung in Bildern
Vorbild Gewerbehalle
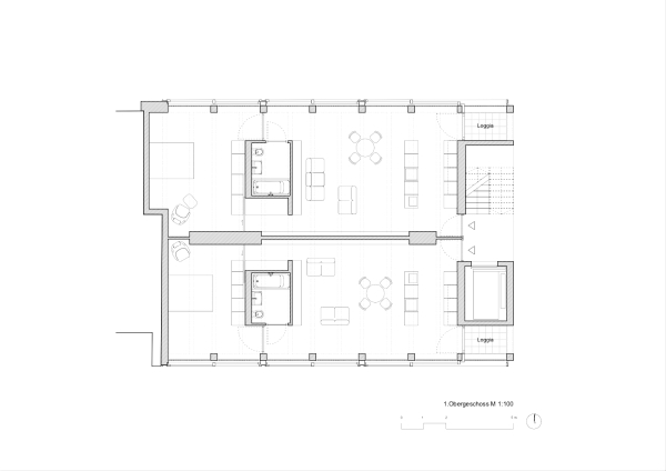
Wohnhaus von FAR frohn+rojas in Berlin
Bild 15/23
1. Obergeschoss
Bild: FAR frohn+rojas