Die Meldung in Bildern
Vorbild Gewerbehalle
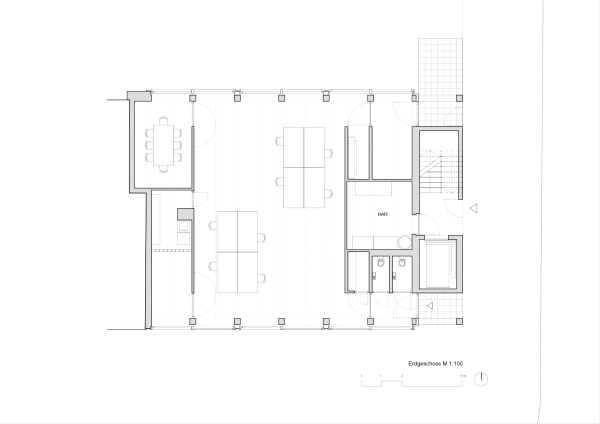
Wohnhaus von FAR frohn+rojas in Berlin
Bild 14/23
Erdgeschoss
Bild: FAR frohn+rojas