Die Meldung in Bildern
Provisorische Beständigkeit
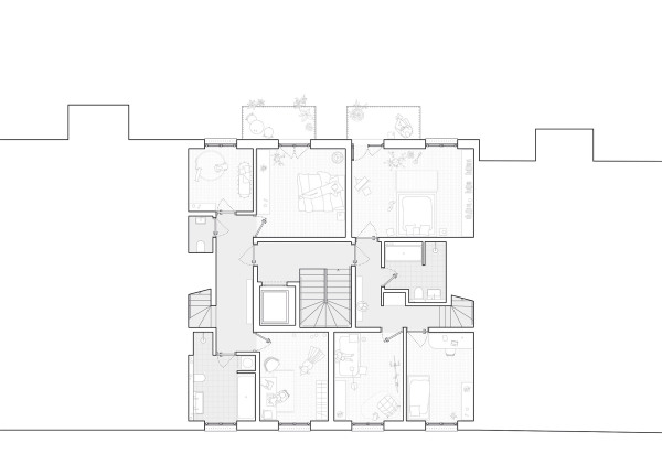
Wohnhaus in Leipzig von KO/OK
Bild 17/19
Grundriss 4. Obergeschoss
Bild: KO/OK