Die Meldung in Bildern
Provisorische Beständigkeit
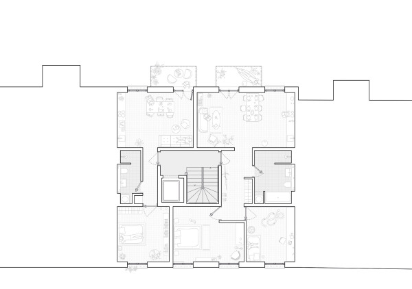
Wohnhaus in Leipzig von KO/OK
Bild 16/19
Grundriss 2. Obergeschoss
Bild: KO/OK