Wohnblock von Atelier Kempe Thill in Hasselt
Bild 28/34
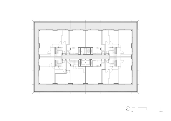
Grundriss 2. Obergeschoss
Bild: Atelier Kempe Thill