Wohnblock von Atelier Kempe Thill in Hasselt
Bild 27/34
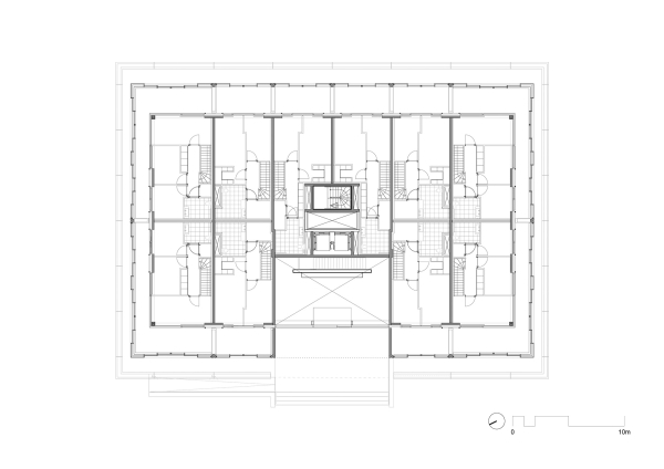
Grundriss 1. Obergeschoss
Bild: Atelier Kempe Thill