Die Meldung in Bildern
Raum für künstlerische Entfaltung
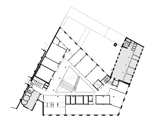
Universitätsgebäude in Helsinki von JKMM
Bild 36/43
Grundriss 2. Obergeschoss
Bild: JKMM Architects