Die Meldung in Bildern
Raum für künstlerische Entfaltung
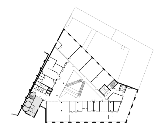
Universitätsgebäude in Helsinki von JKMM
Bild 37/43
Grundriss 3. Obergeschoss
Bild: JKMM Architects