Die Meldung in Bildern
Raum für künstlerische Entfaltung
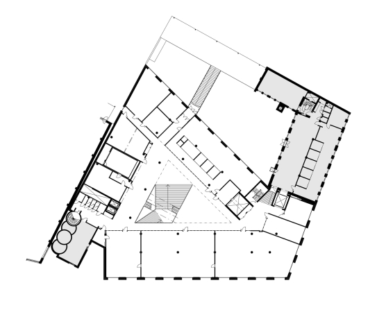
Universitätsgebäude in Helsinki von JKMM
Bild 35/43
Grundriss 1. Obergeschoss
Bild: JKMM Architects