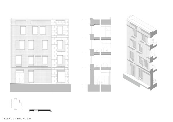
Fassadendetail

Bild 53/53

Fassadendetail

Bild: Hopkins Architects