Die Meldung in Bildern
Lernen in der Radiostation
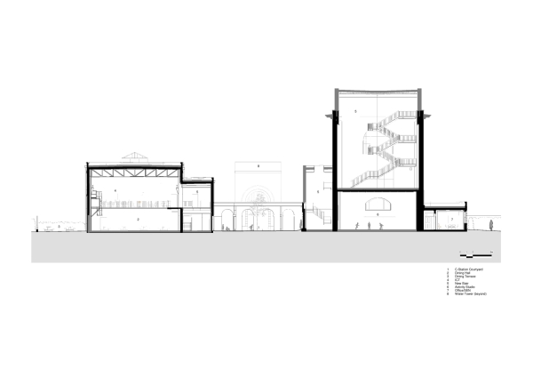
Umbau und Erweiterung in Rugby von vHH Architects
Bild 36/40
Schnitt C Station
Bild: vHH Architects