Umbau und Erweiterung in Rugby von vHH Architects
Bild 35/40
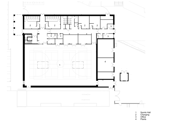
Grundriss Sporthalle
Bild: vHH Architects