Umbau und Erweiterung in Rugby von vHH Architects
Bild 31/40
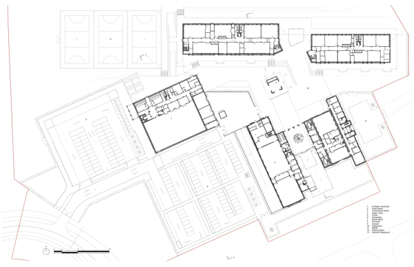
Grundriss Erdgeschoss
Bild: vHH Architects