Die Meldung in Bildern
Lernen in der Radiostation
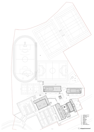
Umbau und Erweiterung in Rugby von vHH Architects
Bild 30/40
Lageplan
Bild: vHH Architects