Umbau in Pardubice von Proks Prikryl architekti
Bild 31/40
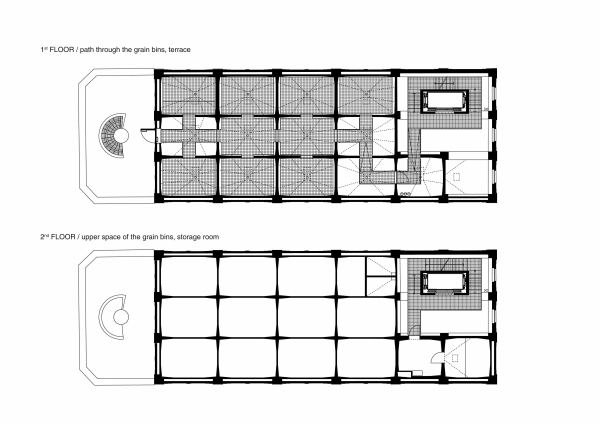
Grundriss 1. und 2. Obergeschoss
Bild: Prokš Přikryl architekti