Umbau in Pardubice von Proks Prikryl architekti
Bild 30/40
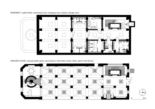
Grundriss Unter- und Erdgeschoss
Bild: Prokš Přikryl architekti