Umbau in Pardubice von Proks Prikryl architekti
Bild 32/40
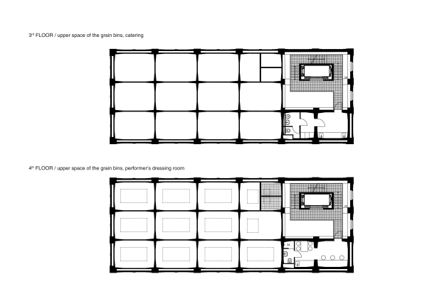
Grundriss 3. und 4. Obergeschoss
Bild: Prokš Přikryl architekti