Studentenwohnheim von Atelier Kempe Thill in Berlin
Bild 24/31
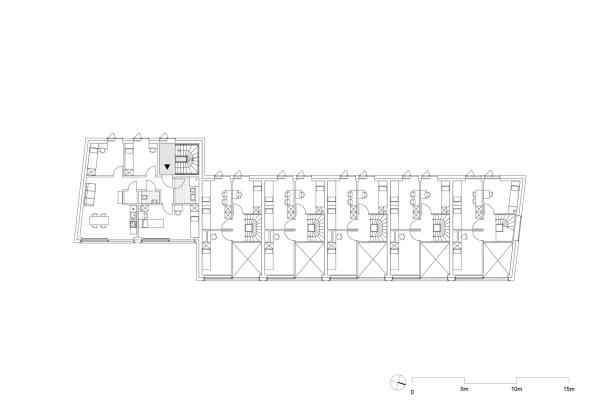
Grundriss 1. Obergeschoss
Bild: Atelier Kempe Thill