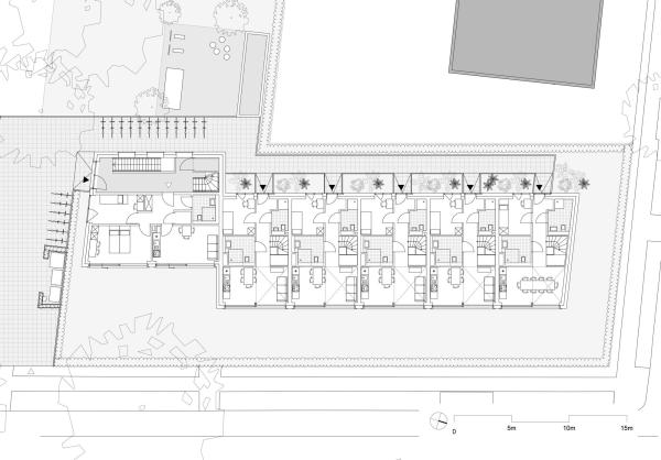
Studentenwohnheim von Atelier Kempe Thill in Berlin
Bild 23/31
Grundriss Erdgeschoss
Bild: Atelier Kempe Thill