Scheunenumbau in Waiblingen von COAST Architekten
Bild 35/44
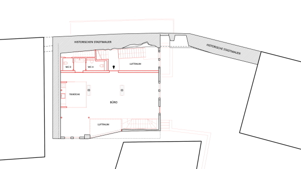
Grundriss 1. Obergeschoss
Bild: COAST Architekten