Scheunenumbau in Waiblingen von COAST Architekten
Bild 34/44
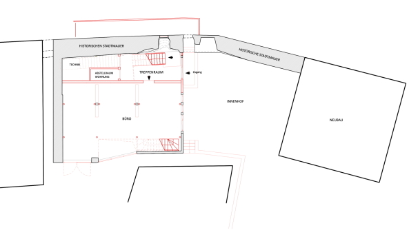
Grundriss Erdgeschoss
Bild: COAST Architekten