Scheunenumbau in Waiblingen von COAST Architekten
Bild 36/44
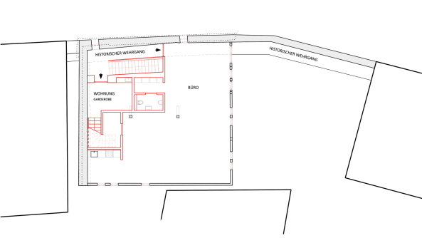
Grundriss 2. Obergeschoss
Bild: COAST Architekten