Die Meldung in Bildern
Ein Palast mit Bungalows
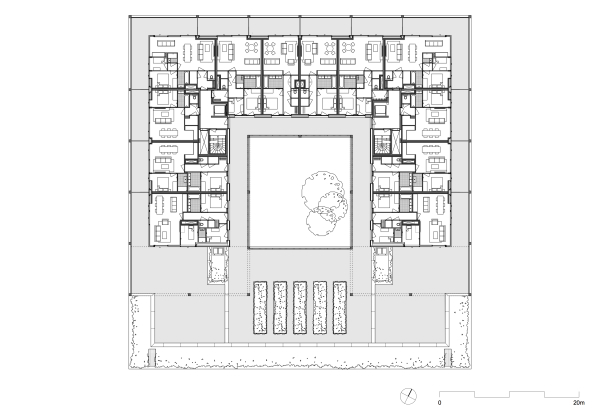
Quartiersblock von Kempe Thill in Antwerpen
Bild 37/42
Grundriss 3. Obergeschoss
Bild: Kempe Thill