Die Meldung in Bildern
Ein Palast mit Bungalows
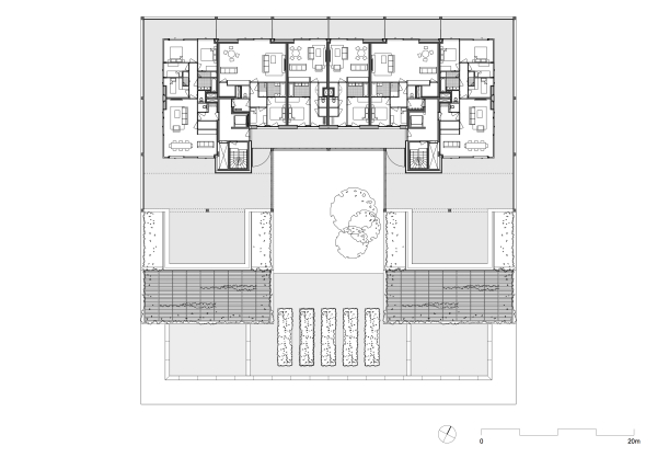
Quartiersblock von Kempe Thill in Antwerpen
Bild 38/42
Grundriss 4. Obergeschoss
Bild: Kempe Thill