Die Meldung in Bildern
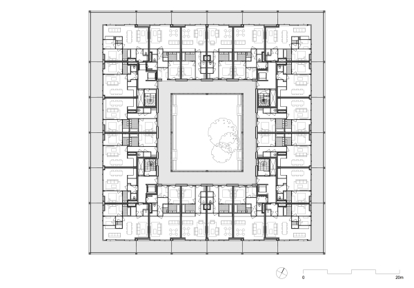
Ein Palast mit Bungalows
Quartiersblock von Kempe Thill in Antwerpen
Bild 36/42
Grundriss 2. Obergeschoss
Bild: Kempe Thill