Die Meldung in Bildern
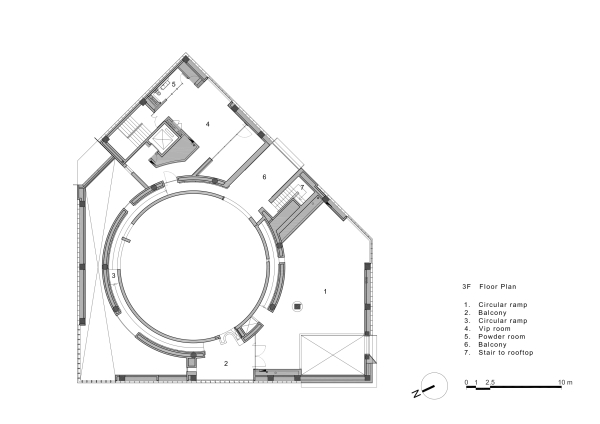
Fünfeck um Kreis
Privates Kunstzentrum von Neri & Hu in China
Bild 31/33
Grundriss 3.OG
Bild: Neri & Hu Architects