Die Meldung in Bildern
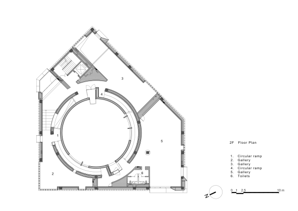
Fünfeck um Kreis
Privates Kunstzentrum von Neri & Hu in China
Bild 30/33
Grundriss 2.OG
Bild: Neri & Hu Architects