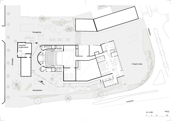
Pläne für Opernhaus und Kulturzentrum in Kristiansund
Bild 13/21
Erstes Obergeschoss
Bild: (c) C.F. Moller Architects