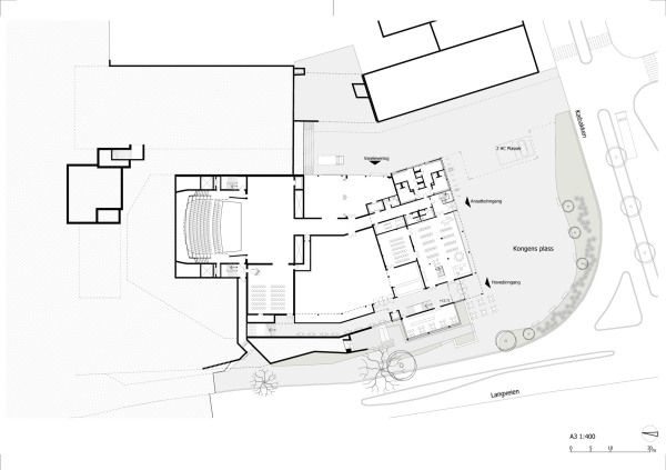
Pläne für Opernhaus und Kulturzentrum in Kristiansund
Bild 12/21
Erdgeschoss
Bild: (c) C.F. Moller Architects