Die Meldung in Bildern
Musis Sacrum erweitert
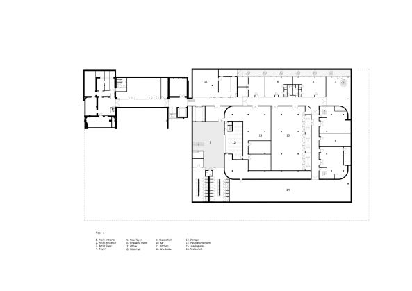
Konzertsaal in Arnheim von Van Dongen-Koschuch
Bild 35/39
Untergeschoss