Die Meldung in Bildern
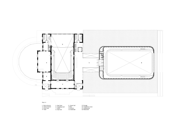
Musis Sacrum erweitert
Konzertsaal in Arnheim von Van Dongen-Koschuch
Bild 36/39
Erstes Obergeschoss