Die Meldung in Bildern
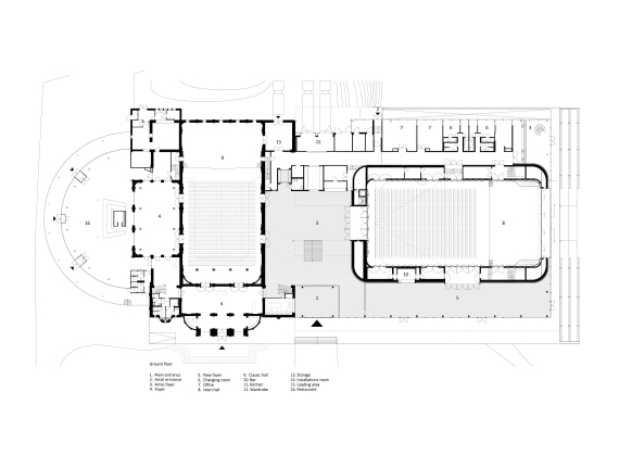
Musis Sacrum erweitert
Konzertsaal in Arnheim von Van Dongen-Koschuch
Bild 34/39
Erdgeschoss