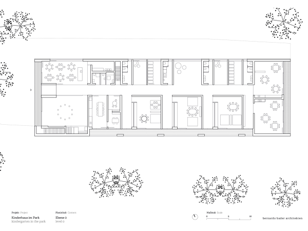
Kindergarten von Bernardo Bader Architekten in Vorarlberg
Bild 17/18
Grundriss
Bild: Bernardo Bader Architekten