Die Meldung in Bildern
Shoppen, lesen, parken
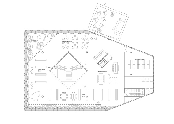
Einkaufszentrum, Bibliothek und Parkhaus von ACME in Melbourne
Bild 57/66
Bibliothek Grundriss 1.OG