Einkaufszentrum, Bibliothek und Parkhaus von ACME in Melbourne
Bild 56/66
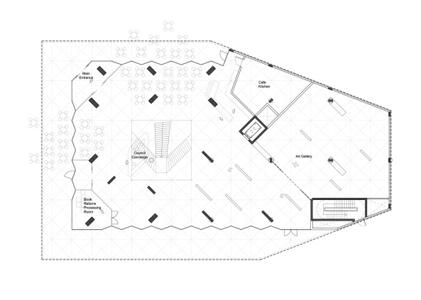
Bibliothek Grundriss Erdgeschoss