Die Meldung in Bildern
Shoppen, lesen, parken
Einkaufszentrum, Bibliothek und Parkhaus von ACME in Melbourne
Bild 58/66
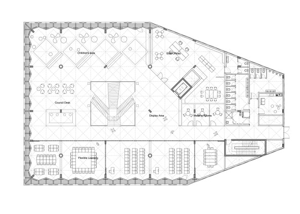
Bibliothek Grundriss 2.OG