Mies at its best
Das 1:1-Modell in Krefeld - mit Kommentar
Ist es sinnvoll, ein nie realisiertes Projekt von Mies van der Rohe als begehbares Modell nachzubauen? Wird es ihm und seinen Entwurfsgedanken gerecht? Oder bedeutet ein solches Vorhaben ein Sakrileg an der Ikone Mies?
In Krefeld hat man den Versuch gewagt. Für den Sommer 2013 ist hier das 1:1-Modell eines Entwurfs entstanden, den Mies 1930 als Wettbewerbsbeitrag konzipiert hatte, der aber nie gebaut wurde.
Zur Vorgeschichte: 2010 gründet sich der Verein MIK (Mies in Krefeld) unter Federführung der Kunsthistorikerin und Urenkelin eines der Miesschen Bauherrn, Christiane Lange. Der Verein hat es sich zum Ziel gesetzt, die langjährige Tätigkeit Mies van der Rohes für Krefelder Bauherrn neu zu beleuchten. Irgendwann entstand die Idee, diese Geschichte statt einer konventionellen Ausstellung mittels eines einzigen Ausstellungsstücks zu erzählen: mit dem 1:1-Modell des Entwurfs für ein Clubhaus.
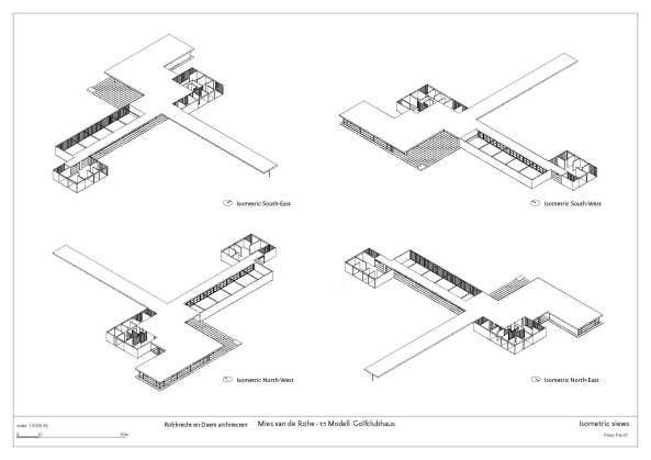
Im August 1930 nimmt Mies nach seinen bereits realisierten Krefelder Projekten Haus Lange und Haus Esters an einem beschränkten Wettbewerb für das Clubhaus des gerade gegründeten Krefelder Golfclubs teil. Der Entwurf auf einem Hügel am Rande des damaligen Stadtgebiets war als offene kreuzförmige Raumabfolge konzipiert. Ein 50 Meter langes und sieben Meter breites Vordach, das von sieben Stützen getragen wird, empfängt den Besucher. Die große Geste des Vordachs wie auch der links davon liegende lang gestreckte Flügel der Umkleiden dienen als weit in die Landschaft greifende Anker. Durch eine Halle, an die sich kleinere Nebenräume anlagern, gelangt man entlang einer 20 Meter langen Glasfront übergangslos zum Herzstück der Miesschen Planung, dem Saal mit 240 Quadratmetern Fläche. Der Raum ist fast vollständig verglast, nur die Ostwand ist geschlossen. Zwei frei stehende Wandelemente „durchbrechen“ den Raum. Auf einer Seite trennt die lange Glasfront den Innenraum von der überdachten Terrasse, die in eine offene Fläche und in den Golfplatz übergeht.
Weil der Golfclub das Geld für den Bau in Zeiten der Weltwirtschaftskrise nicht zusammen bekommt, wird der Wettbewerb nie entschieden und das Clubhaus nicht gebaut.
Dennoch ist für den Verein schnell klar, dass gerade dieser Entwurf im Werk Mies van der Rohes so relevant ist, dass man ihn für die Realisierung als begehbares Modell auswählt. „In gewisser Weise realisierte Mies beim Golfclub-Entwurf seine frühen Visionen einer Architektur, die sich physisch mit der Natur verzahnt“, erklärt Christiane Lange. „Wie ein asymmetrisches Kreuz ist der Bau auf der Kuppe des Hügels verankert. Deshalb war es für uns ein unverzichtbare Voraussetzung, das Modell in der originalen Topografie errichten zu können. Es ist ein Glücksfall, dass dieses Terrain nie bebaut wurde.“
Auch das für die Planung des Modells beauftragte Büro Robbrecht en Daem Architecten (Gent) ist sofort von der Idee überzeugt. Paul Robbrecht: „Das Golfclubhaus ist eines der typischsten Bauwerke von Mies im Hinblick auf sein Verhältnis zur Natur. Es ist ein Gebäude, das mit der Landschaft regelrecht in Dialog tritt.“
Da sich auf dem ursprünglichen Standort heute ein Naturschutzgebiet befindet, entsteht das Modell ca. 300 Meter entfernt; drei Monate dauert die Bauzeit- Grundlage für den Entwurf von Robbrecht en Daem bilden die von Mies als „endgültiger Entwurf“ bezeichneten Pläne, bestehend aus Grundrissen, mehreren Perspektiven und einem Schnitt. Gebaut wird ein Stahlskelettbau, dessen Deckenkonstruktion mit Holz verkleidet wird. Sichtbar bleiben lediglich die Stahlstützen. Die nicht tragenden Wände werden mit Holzplatten beplankt. Decken wie auch Wände bestehen aus Seekieferplatten, die, weiß geschlämmt, die Maserung des Holzes darunter noch erkennen lassen. Der Boden besteht aus 1x1 Meter großen Betonplatten oder Kies.
Da nicht alle Bereiche in den Originalplänen detailliert dargestellt sind, verzichten die Architekten auf erzählerische Details. Die Wände sind aus Holz, die Fenster als Rahmen erkennbar, aber ohne Glas. Wenn Angaben zum Beispiel zu Brüstungshöhen von Fenstern und Türen der Nebenräume fehlen, werden diese weggelassen. Statt fehlende Informationen durch Vermutungen zu ergänzen, werden diese Bereiche nur skizzenhaft dargestellt. So ist der Boden in den Nebenräumen nur mit Kies dargestellt, die Beplankung der Innenwände fehlt, ebenso Teile der Außenwände wie auch das Dach.
Einzig die markanten, auf kreuzförmigem Grundriss stehenden Stützen haben die Architekten, und das ist vielleicht ein kleiner Wermutstropfen, detailliert „mies-getreu“ ausgeführt. Sie sind mit polierten Edelstahlblechen verkleidet und kommen damit visuell den mit Chromblech ummantelten Stützen im Haus Tugendhat und im Barcelona-Pavillon gefährlich nahe. Die spiegelnde Oberflächen bezeichnen die Architekten als „unechte Spolie“ und als einziges erzählerisches Element ihrer Umsetzung. Die rauhe, „echte“ Oberfläche der darunter liegenden Stahlstütze hätte aber zu der Materialität des Modells viel besser gepasst.
Entstanden ist ein Modell, das das von Mies erdachte Clubhaus weder als gebaute Architektur erscheinen lässt, noch als Kulisse. Entstanden sind – vielleicht sogar viel plakativer als bei einem realen Gebäude – die zentralen Ideen, die Mies bei diesem Entwurf hatte: das Auflösen des Baukörpers zugunsten eines fließenden, offenen Raumes, eines Raumes, der irgendwie außen aber auch irgendwie innen ist. Der die Landschaft inszeniert und doch gleichzeitig Teil dieser Inszenierung wird.
Um zu den eingangs gestellten Fragen zurückzukommen: Ja, man darf!
Vor allem, wenn das Ergebnis durch sorgfältige Planung und kompetente Umsetzung den Besucher überzeugt, gerade ein Stück – im wahrsten Sinne des Wortes – außergewöhnliche Architektur zu erleben, eben: Mies at its best!
Übrigens: Um allen kritischen Bemerkungen ob einer solchen Materialverschwendung vorab entgegen zu wirken: An eine Nachnutzung des Modells ist gedacht. Es wird mit Aachener und Krefelder Architekturstudenten den Workshop „Recycling Mies“ geben, bei dem pavillonartige Bauten entstehen sollen, die dann mit dem Material des Models realisiert werden.
(Uli Meyer)
Fotos: Marc De Blieck, Robbrecht en Daem Architecten
Eröffnung: 26. Mai 2013, 11 Uhr
Ausstellung: 26. Mai bis 27. Oktober 2013
Ort: Am Egelsberg, 47802 Krefeld
Der Eintritt ist am Eröffnungstag frei.
Infos unter: www.projektmik.com