Bild 10/17
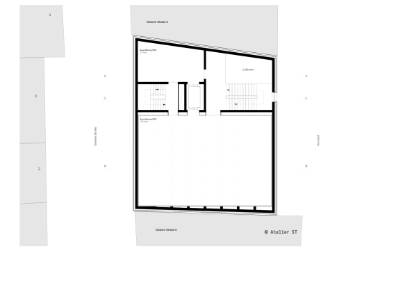
Erstes Obergeschoss: Jedes Geschoss wird nach oben hin ein wenig breiter. So entsteht ein Maximum an Ausstellungsfläche.
Bild: Atelier ST
Bild 10/17
Erstes Obergeschoss: Jedes Geschoss wird nach oben hin ein wenig breiter. So entsteht ein Maximum an Ausstellungsfläche.
Bild: Atelier ST