Die Meldung in Bildern
Kunst in die Düstere Straße!
Baubeginn am Kunsthaus Göttingen
Bild 11/17
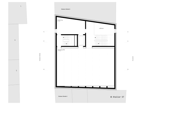
Zweites Obergeschoss
Bild: Atelier ST