Bild 9/17
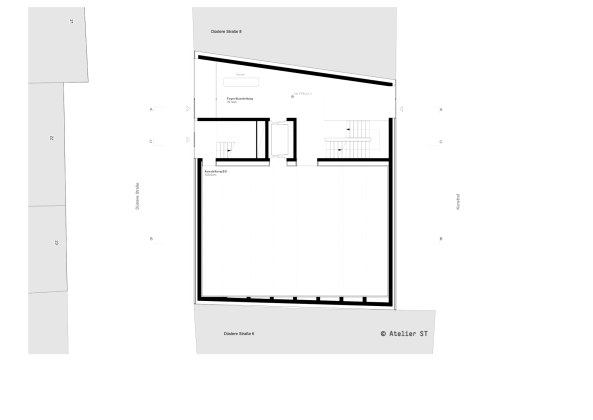
Grundriss EG: Ein wichtiges Kriterium war die Zugänglichkeit durch das Gebäude zum Hof, möglichst auch außerhalb der Öffnungszeiten.
Bild: Atelier ST
Bild 9/17
Grundriss EG: Ein wichtiges Kriterium war die Zugänglichkeit durch das Gebäude zum Hof, möglichst auch außerhalb der Öffnungszeiten.
Bild: Atelier ST