Die Meldung in Bildern
Messer mit Treppe
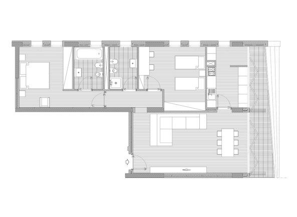
Appartementhaus in Assago
Bild 34/38
Wohnungstyp 2