Die Meldung in Bildern
Messer mit Treppe
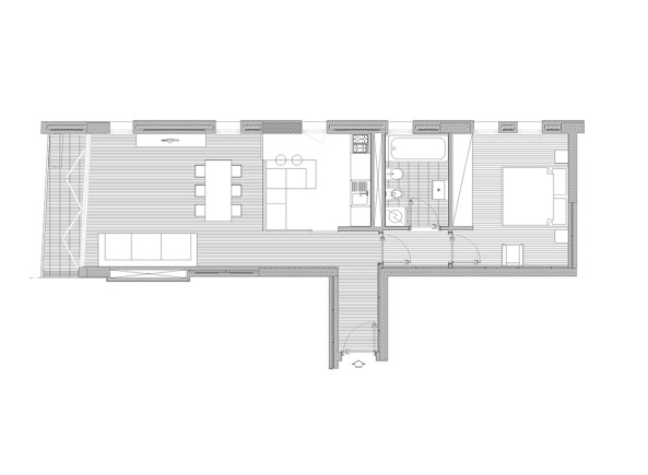
Appartementhaus in Assago
Bild 33/38
Wohnungstyp 1