Die Meldung in Bildern
Messer mit Treppe
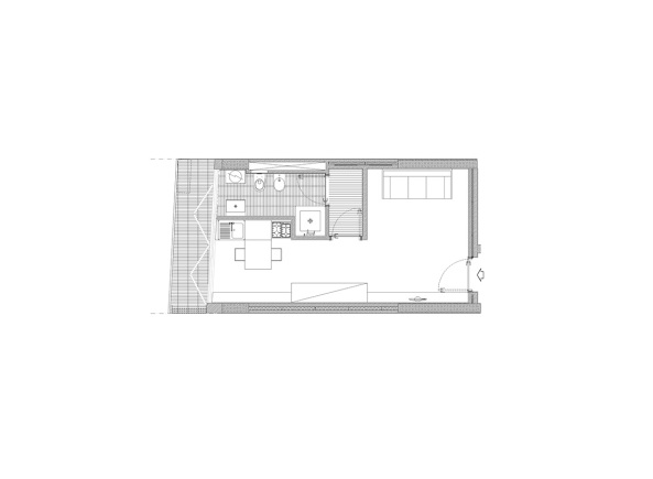
Appartementhaus in Assago
Bild 35/38
Wohnungstyp 3