Bild 22/35
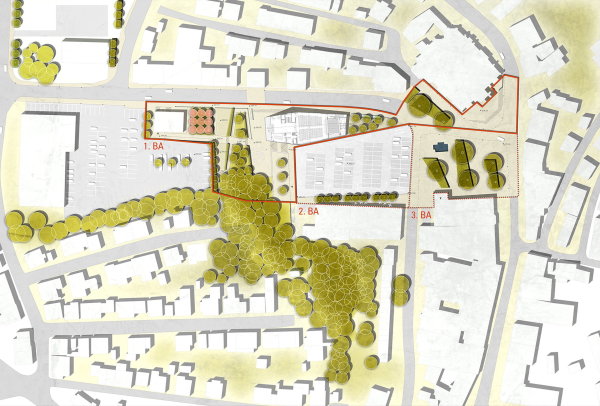
3. Preis Kategorie Reaktivierte Zentren: Ortsmitte Quierschied - Städtebauliche Neuordnung des Ortskerns
Bild: HDK Dutt & Kist GmbH
Bild 22/35
3. Preis Kategorie Reaktivierte Zentren: Ortsmitte Quierschied - Städtebauliche Neuordnung des Ortskerns
Bild: HDK Dutt & Kist GmbH