Die Meldung in Bildern
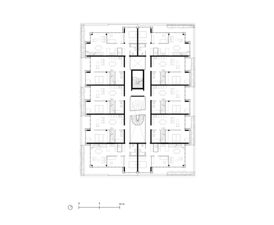
Offenes Wohnen im Thulekiez
Zanderroth Architekten in Berlin-Pankow
Bild 20/23
Grundriss Dachgeschoss